MBT Prüfung 2002


Aufgabe 6 - CNC-Fräsen

15 BE

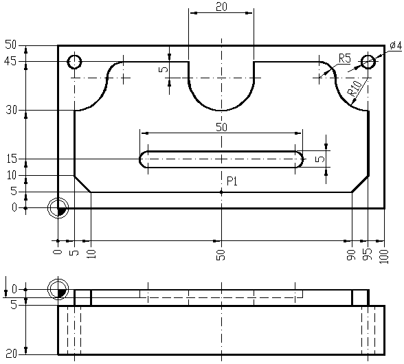
Grundplatte

Auf einer Senkrechtkonsolfräsmaschine ist die Grundplatte (siehe Zeichnung) zu fertigen. Werkzeuge und Schnittwerte sind dem Werkzeugplan zu entnehmen.
 
Fertigungszeichnung:
 
 

Werkstück

Werkzeugplan:

  ZfZ in mmvc in mmin-1amax in mm
T01 Langlochfräser Ø 5 mm
    HSS
20,02504
T02 Schaftfräser Ø 16 mm
    HSS
60,058010
T03 Bohrer Ø 4 mm
    HSS
-f = 100 mm30-
 
6.1 Ermitteln Sie die fehlenden zu programmierenden Schnittwerte unter Verwendung der Angaben aus dem Werkzeugplan.

(3 BE)

6.2 Legen Sie die Bearbeitungsreihenfolge fest und erstellen Sie das CNC-Programm auf dem Programmblatt.

(12 BE)

Hinweise:
Der Startpunkt und der Werkzeugwechselpunkt liegen bei X 150 und Z 200 und Y 40.
Das Werkstück ist im Gleichlauf mit Fräserradiuskorrektur zu fertigen.
Die Konturbearbeitung beginnt bei P1 (X 50; Y 5).